We create effective communications, design and architecture. See more >>

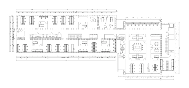
Open space offices for a newspaper company in the center of Ljubljana.

ARCHITECTURE. INTERIOR.

Building area: 890 m2
Program: offices
Author: REPUBLIKA™

A newspaper company planned a complete transformation of its offices and editorial spaces within the historic "Kanarček" building, designed by renowned architect Edvard Ravnikar. We developed a concept centered on open-plan workspaces, with dedicated areas for private communication and a distinctive conference room.

The result is a dynamic environment that allows the entire editorial team to operate as a synchronized unit.

Back

About REPUBLIKA

We are committed to providing our customers with the best solutions, offering tailor-made service across various fields such as architecture, interior design, graphic design, and more.

To ensure optimal results, we assemble a skilled team of professionals to collaborate effectively on each project.

REPUBLIKA™ is a registered trade mark.

All-around

Contact