We create effective communications, design and architecture. See more >>

City Center Old Town Apartments.

ARCHITECTURE.

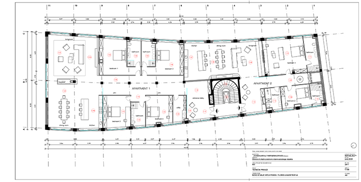
Building area: 630m2
Site area: 5.040m2
Program: residential / in progress
Author: REPUBLIKA™

In the heart of the capital’s historic city center, an exclusive new apartment development is rising. Located within a vibrant yet storied neighborhood, with sweeping views of the city’s iconic historic landmarks, this prestigious address offers a rare opportunity that we are bringing to life.

Designed to the highest standards of luxury, each residence will feature exquisite architecture and premium materials within thoughtfully crafted interiors.

This is not just a place to live— it’s a lifestyle reserved for those who seek the extraordinary.

Back

About REPUBLIKA

We are committed to providing our customers with the best solutions, offering tailor-made service across various fields such as architecture, interior design, graphic design, and more.

To ensure optimal results, we assemble a skilled team of professionals to collaborate effectively on each project.

REPUBLIKA™ is a registered trade mark.

All-around

Contact